Szczegóły oferty
Numer oferty:
CZE-519911Typ nieruchomości:
Lokal komercyjnyTyp oferty:
SprzedażCena:
475 000 PLNCena za m2:
1 667 PLNPowierzchnia:
285.00 m2Pow. użytkowa:
245 m2Liczba pokoi:
13Ilość pięter:
1Opis
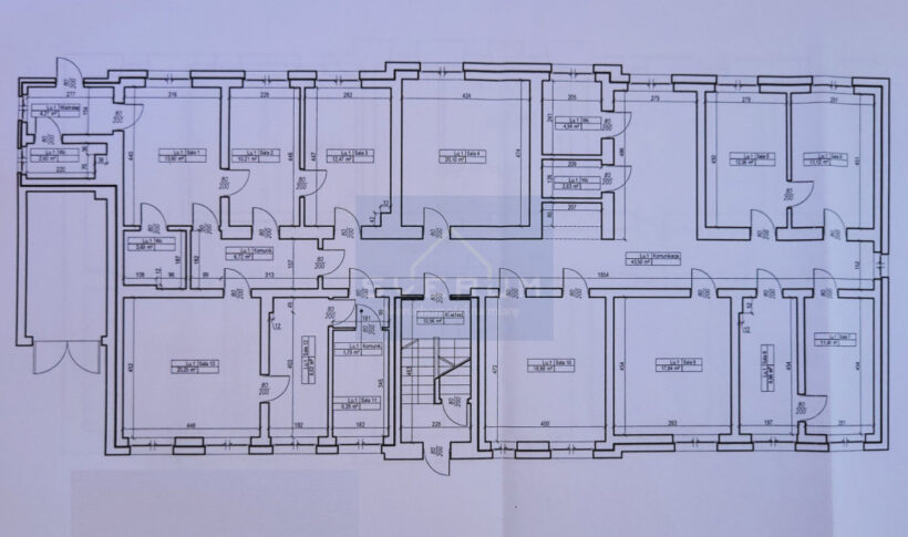
ROZKŁAD POMIESZCZEŃ:
- 13 sal/pomieszczeń
- 4 toalety
- wiatrołap
- komunikacja
STANDARD:
- Stan techniczny: do remontu
- Ściany: tynk
- Okna: PCV
- Podłogi: linoleum
- Media: prąd, woda, gaz, kanalizacja
- Pomieszczenia przynależne: piwnica o powierzchni ok. 40 m²
- Miejsca parkingowe: parking przy budynku na ok. 10 samochodów
- Udział w gruncie
Nieruchomość położona jest przy skrzyżowaniu ulic Częstochowskiej i Paderewskiego, w bardzo dobrze skomunikowanej części miasta. W bezpośredniej okolicy znajdują się m.in.: dworzec PKP, Urząd Miasta, Starostwo Powiatowe, szkoła, przedszkole, apteka oraz galeria handlowa.
PRZEZNACZENIE TERENU:
Działka objęta jest miejscowym planem zagospodarowania przestrzennego - przeznaczenie: zabudowa mieszkaniowa wielorodzinna oraz usługi. Szczegóły zawarte są w Uchwale Rady Miasta Lubliniec Nr 247/XXI/2012 z dnia 26.06.2012 r., dostępnej na stronie Urzędu Miasta Lubliniec.
Serdecznie zapraszam do zapoznania się z ofertą oraz kontaktu w celu uzyskania dodatkowych informacji.
Beata Maciejewska
Biuro Nieruchomości Sverum










