Szczegóły oferty
Numer oferty:
CZE-300504Typ nieruchomości:
Lokal handlowy/usługowyTyp oferty:
WynajemCena:
6 500 PLNCena za m2:
25 PLNPowierzchnia:
258.80 m2Liczba pokoi:
17Rok budowy:
2008Piętro:
1Opis
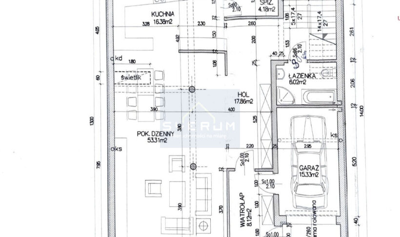
ROZKŁAD POMIESZCZEŃ PARTER:
wiatrołap, pokój dzienny, kuchnia, spiżarnia, łazienka, garaż
Standard:
Drzwi: PCV
Ściany wewnętrzne: gładzie gipsowe, tynk strukturalny
Ściany zewnętrzne: tynk, styropian 10cm
Okna: PCV
Podłogi: granit, gres
Zabezpieczenia: roleta zewnętrzna
ROZKŁAD POMIESZCZEŃ PIĘTRO:
hol, 5 sypialni, 5 łazienek, taras
Standard:
Drzwi: PCV
Ściany wewnętrzne: gładzie gipsowe
Ściany zewnętrzne: tynk, styropian 10cm
Okna: PCV
Podłogi: płytki
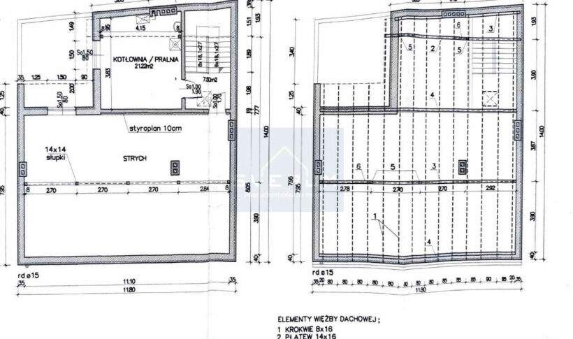
ROZKŁAD POMIESZCZEŃ PODDASZE:
strych, kotłownia z pralnią i suszarnią
Standard:
Drzwi: PCV
Ściany wewnętrzne: gładzie gipsowe
Ściany zewnętrzne: tynk, styropian 10cm
Okna: PCV
Podłogi: płytki
Miejsca parkingowe: w strefie publicznej tuż przy lokalu
LOKALIZACJA:
Dzielnica, w pobliżu Galeria Jurajska, Apteka, Bankomat, Punkty handlowe i usługowe, Przedszkole, Szkoła
Komunikacja: mpk, tramwaj, dojazd autem
Dodatkowo:
Cena najmu: 6500 zł
Opłaty za media: według wskazań licznika - prąd i woda, gaz
Ogrzewanie: gazowe
Czynsz: lokal bezczynszowy
Kaucja: 10000 zł
Dostępne: od 08 stycznia 2026r.
Możliwość najmu dodatkowych pomieszczeń o powierzchni 145,75 za kwotę 2500 zł oraz lokalu o powierzchni 235m2 w cenie 4500 zł. Lokale łączą się ze sobą.
Zapraszam na prezentację i po więcej informacji
Eliza Flis










